- 住所
- 〒959-3132 新潟県村上市坂町1792-4
- 賃料
- 88,000円(1ヶ月+消費税)
- 交通
- JR羽越線 坂町駅から車で約2分くらい
日本海東北道 荒川胎内ICより車で約7分くらい
- 共益費
- 家賃込
- 敷金
- 88,000円(1ヶ月分+消費税)
- 駐車料
- 駐車場はございません。
- 礼金
- 0円
- 保証料
- 条件によってご加入頂きます。
- 火災保険
- 別途、ご加入下さい。
- 仲介料
- 88,000円(1ヶ月+消費税)
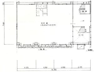
- 構造
- 鉄骨造3階建
- 築年数
- 1984年(昭和59年)9月
- 専有面積
- 118.20㎡(35.75坪)
- 設備
- ◎設備等はございません。前人者の退去後のままの状態となっております。
◎電気(東北電力)、ガス(プロパン)、水道(公共下水)
◎駐車場はございません。前面道路(村上市道)にある「ゼブラゾーン」へ駐車する事になりますが、原則駐車する事は出来ない状況です。(村上市荒川支所へ確認しました。)
◎現況での賃貸借契約になります。
◎現況と異なる場合は現況を優先させて頂きます。
◎内装工事費用に関しましては、借主様のご負担となります。
- 備考
- 村上市坂町は、坂町駅、国道7号線が近くにあります。
国道7号線まで車で約2分くらいです。
国道7号線に、イオン、ホームセンター、ドラッグストア
などがございます。
■ご契約時に必要な書類
個人契約(借主様):運転免許証写し 、車検証写し
個人契約(連帯保証人様、緊急連絡先様):運転免許証写し
法人契約(借主様):登記事項証明書、印鑑証明書、会社概要
※連帯保証人様は、別居の親族にてお願いします。
※現況と異なる場合は現況を優先させて頂きます。
※詳細はユタカ不動産までお問い合わせ下さい。


